Aller à :

  • Aller à la recherche
  • Aller au menu principal
  • Aller au contenu
0
  • Accueil
  • Locations
  • Vente
  • Commerces
    • Vente
    • Location
  • Gestion locative
  • Notre agence
  • Contact
0
VotreRecherche
Dans un rayon de
  1. Accueil
  2. Vente
  3. Monaco
  4. Appartement
  5. T3
  6. 3 pieces trocadero
Exclusif
Réf : 4C2
Appartement
3 PIECES - 'TROCADERO'
Nombre de pièces 3
Nombre de chambres 2
Nombre de salles de bain 2
7 700 000 €

3 PIECES - 'TROCADERO' Monaco (98000)

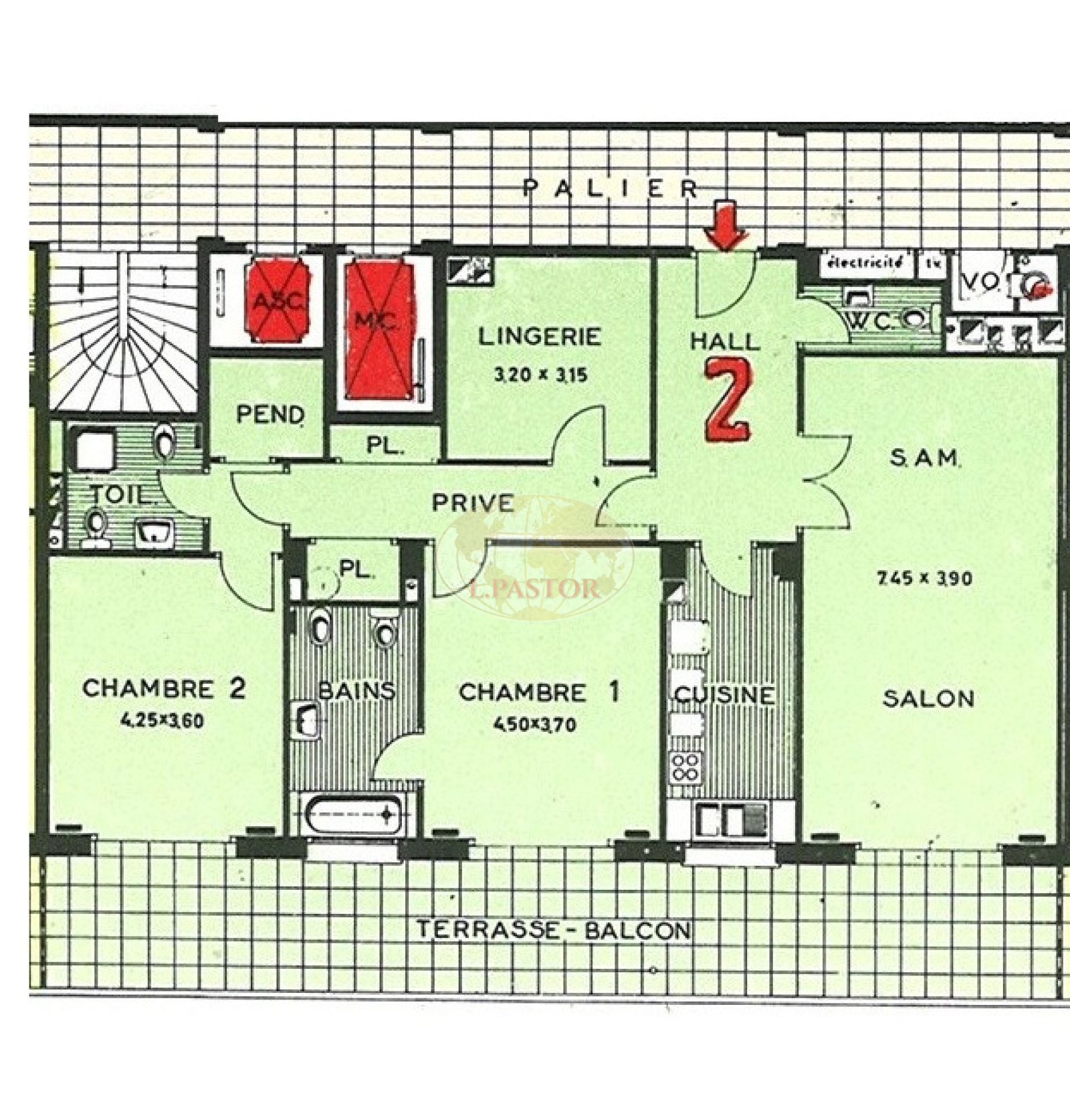
L'appartement se compose d'un beau hall d'entrée avec un toilette invités, d'un salon et de sa cuisine séparée. 
Une lingerie se situe dans la partie nuit avec des placards et une salle de douche sans fenêtre. 
Les 2 chambres et la 2ème salle de douche sont vue mer ainsi que la terrasse.
L’appartement dispose d’une cave.
Pas de rétrocession.
  • Général
  • Détails +
  • Financier
  • DPE
  • Quartier
Caractérisque Valeurs
Code postal 98000
Surface habitable (m²) 163 m²
Nombre de chambre(s) 2
Nombre de pièces 3
Etage 4
Caractérisque Valeurs
Nb de salle de bains 2
Mode de chauffage Autre
Type de chauffage Autre
Format de chauffage AUTRE
Balcon NON
Cave NON
Caractérisque Valeurs
Prix de vente honoraires TTC inclus 7 700 000 €
DPE GES
  • Commerces et santé
  • Loisirs
  • Ecoles
  • Transports
  • Pratique
Cette offre
vous intéresse

* champs obligatoires

Les informations recueillies sur ce formulaire sont enregistrées dans un fichier informatisé par La Boite Immo agissant comme Sous-traitant du traitement pour la gestion de la clientèle/prospects de l'Agence / du Réseau qui reste Responsable du Traitement de vos Données personnelles. La base légale du traitement repose sur l'intérêt légitime de l'Agence / du Réseau. Elles sont conservées jusqu'à demande de suppression et sont destinées à l'Agence / au Réseau. Conformément à la loi « informatique et libertés », vous disposez des droits d’accès, de rectification, d’effacement, d’opposition, de limitation et de portabilité de vos données. Vous pouvez retirer votre consentement à tout moment en contactant directement l’Agence / Le Réseau. Consultez le site https://cnil.fr/fr pour plus d’informations sur vos droits. Si vous estimez, après avoir contacté l'Agence / le Réseau, que vos droits « Informatique et Libertés » ne sont pas respectés, vous pouvez adresser une réclamation à la CNIL. Nous vous informons de l’existence de la liste d'opposition au démarchage téléphonique « Bloctel », sur laquelle vous pouvez vous inscrire ici : https://www.bloctel.gouv.fr Dans le cadre de la protection des Données personnelles, nous vous invitons à ne pas inscrire de Données sensibles dans le champ de saisie libre.
Ce site est protégé par reCAPTCHA, les Politiques de Confidentialité et les Conditions d'Utilisation de Google s'appliquent.

Partager le bien
Nos outils
Imprimer Imprimer
Calculatrice financière

* Champ obligatoire

Partager l'annonce

* champs obligatoires

Les informations recueillies sur ce formulaire sont enregistrées dans un fichier informatisé par La Boite Immo agissant comme Sous-traitant du traitement pour la gestion de la clientèle/prospects de l'Agence / du Réseau qui reste Responsable du Traitement de vos Données personnelles. La base légale du traitement repose sur l'intérêt légitime de l'Agence / du Réseau. Elles sont conservées jusqu'à demande de suppression et sont destinées à l'Agence / au Réseau. Conformément à la loi « informatique et libertés », vous disposez des droits d’accès, de rectification, d’effacement, d’opposition, de limitation et de portabilité de vos données. Vous pouvez retirer votre consentement à tout moment en contactant directement l’Agence / Le Réseau. Consultez le site https://cnil.fr/fr pour plus d’informations sur vos droits. Si vous estimez, après avoir contacté l'Agence / le Réseau, que vos droits « Informatique et Libertés » ne sont pas respectés, vous pouvez adresser une réclamation à la CNIL. Nous vous informons de l’existence de la liste d'opposition au démarchage téléphonique « Bloctel », sur laquelle vous pouvez vous inscrire ici : https://www.bloctel.gouv.fr Dans le cadre de la protection des Données personnelles, nous vous invitons à ne pas inscrire de Données sensibles dans le champ de saisie libre.
Ce site est protégé par reCAPTCHA, les Politiques de Confidentialité et les Conditions d'Utilisation de Google s'appliquent.

Détail des diagnostics énergétiques
DPE GES
DPE ANCIENNE VERSION

Partager avec vos proches

Facebook Facebook
Messenger Messenger
Twitter Twitter
WhatsApp WhatsApp
LinkedIn LinkedIn
Copier le lien Copier le lien
Autres biens

Ces biens peuvent aussi vous intéresser

Autre

MONACO - LE TROCADERO

Monaco (98000)
Voir le bien
Appartement

2 PIECES - 'TROCADERO'

Monaco (98000)
Exclusif
Voir le bien
Contacter
l'agence

Remplissez ce formulaire, nous ferons de notre mieux pour vous répondre dans les meilleurs délais.

CAPI PASTOR
+377 93 15 97 77
E-mail capi@capi.mc

31 avenue Princesse Grace 98000 Monaco

TRAD_MELTEM_voscoordonnees
TRAD_MELTEM_voredemande
Règlementation

* Champ obligatoire

Les informations recueillies sur ce formulaire sont enregistrées dans un fichier informatisé par La Boite Immo agissant comme Sous-traitant du traitement pour la gestion de la clientèle/prospects de l'Agence / du Réseau qui reste Responsable du Traitement de vos Données personnelles. La base légale du traitement repose sur l'intérêt légitime de l'Agence / du Réseau. Elles sont conservées jusqu'à demande de suppression et sont destinées à l'Agence / au Réseau. Conformément à la loi « informatique et libertés », vous disposez des droits d’accès, de rectification, d’effacement, d’opposition, de limitation et de portabilité de vos données. Vous pouvez retirer votre consentement à tout moment en contactant directement l’Agence / Le Réseau. Consultez le site https://cnil.fr/fr pour plus d’informations sur vos droits. Si vous estimez, après avoir contacté l'Agence / le Réseau, que vos droits « Informatique et Libertés » ne sont pas respectés, vous pouvez adresser une réclamation à la CNIL. Nous vous informons de l’existence de la liste d'opposition au démarchage téléphonique « Bloctel », sur laquelle vous pouvez vous inscrire ici : https://www.bloctel.gouv.fr Dans le cadre de la protection des Données personnelles, nous vous invitons à ne pas inscrire de Données sensibles dans le champ de saisie libre.
Ce site est protégé par reCAPTCHA, les Politiques de Confidentialité et les Conditions d'Utilisation de Google s'appliquent.

Se connecter
Espace propriétaire
Page d'accueil
Adhérents

© 2026 | Tous droits réservés | Traduction powered by Google |

  • Plan du site
  • Mentions légales
  • Admin
  • Nos liens
  • Politique RGPD

TRAD_LBI_cookies_comme_beaucoup_notre_site TRAD_LBI_cookies_utilise_les_cookies

TRAD_LBI_cookies_text1 TRAD_LBI_cookies_text2

TRAD_LBI_cookies_parametrer

TRAD_LBI_cookies_type_function_titreTRAD_LBI_cookies_type_function_text

TRAD_LBI_cookies_type_analyse_titreTRAD_LBI_cookies_type_analyse_text

?

Google Analytics

TRAD_LBI_cookies_en_savoir_plus